Trilocale in vendita

Collecchio, via praga
€ 370.000
3 locali 3 locali
125 Mq 125 Mq
1 bagno 1 bagno

Trilocale in vendita

Collecchio, via praga

Descrizione annuncio

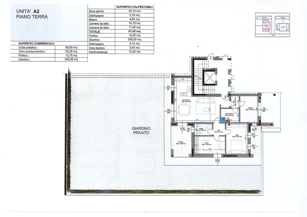
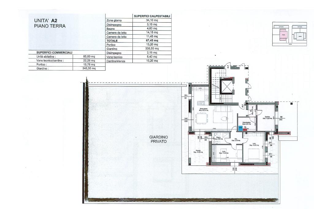
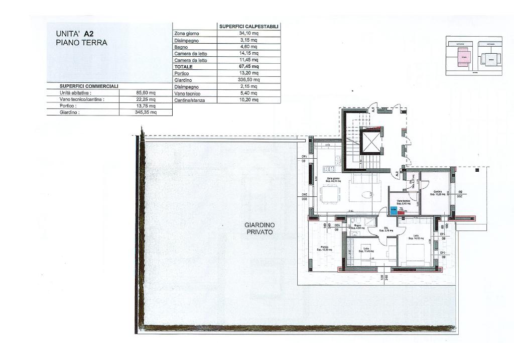
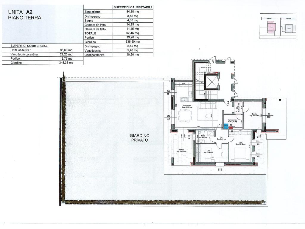
Nel cuore di Collecchio, nella rinomata zona Coop, proponiamo un Trilocale con giardino privato di NUOVA COSTRUZIONE che unisce comfort e modernità.

L'immobile offre spazi ampi e ben distribuiti, ideali per chi cerca funzionalità e stile.

Il trilocale si compone di due camere da letto , un bagno, lavanderia, garantendo spazio e privacy per tutta la famiglia.

CLASSE ENERGETICA A4, Capitolato con impianto fotovoltaico e batterie di accumulo comprese. Possibilità di un COMODO GARAGE.

Consegna prevista giugno 2026.

Questo appartamento rappresenta una soluzione abitativa all'avanguardia, pronta ad accogliere chi desidera vivere in un contesto moderno e ben servito.

Per maggiori informazioni Mara 329.0253213

Mostra tutto

Nelle vicinanze

Trasporto pubblico Trasporto pubblico
Collecchio
Collecchio
1,3 Km
Trasporto pubblico
940 m
Scuole Scuole
Istituto “E. Guatelli”
980 m
Farmacia Farmacia
Farmacia Comunale
150 m
Ospedali Ospedali
Assistenza Volontaria di Collecchio
920 m
Supermercati Supermercati
COOP Collecchio
100 m
Bar Bar
Bar
890 m
Lino's Coffee
970 m
Il chiosco
1,1 Km
Bar Centrale
1,1 Km
Bar La Fenice
1,2 Km
Ristoranti Ristoranti
Il Melograno
340 m
Porfido
870 m
Villa Maria Luigia
1,1 Km
Trattoria Le Valli
1,4 Km
Ristorante Pizzeria Il Bacio
1,6 Km
Mostra tutto

Caratteristiche

Rif.:
61166251
Piano:
Basso di 2 con ascensore
Totale piani:
2
Posti auto:
1
Camere da letto:
3
Arredamento:
Assente
Mostra tutto
Prezzo Prezzo
€ 370.000
Rata mutuo Rata mutuo
€ 1.753 / mese
Proponi il tuo prezzoProponi il tuo prezzo

Classe Energetica

A4
A4
A4
A4
A4
A4
A4
A4
A4
EP globale non rinnovabile:
100.00 kW h/m² anno
EP globale rinnovabile:
100.00 kW h/m² anno
EP invernale del fabbricato:
EP estiva del fabbricato:
Anno di costruzione:
2026
Riscaldamento:
Autonomo
Tipo impianto:
Ad aria
Tipo alimentazione:
Aria

Ti interessa visionare l'immobile?

Fissa un appuntamento  Fissa un appuntamento

Richiedi informazioni

Clicca su Leggi per aprire l'informativa
* Questi campi sono obbligatori

Calcola il tuo mutuo

Semplice e senza impegno
Anticipo

( % )
Mutuo

( % )

pochi semplici passi

inserisci i tuoi dati
Questionario completato
Grazie per aver richiesto un appuntamento senza impegno con un nostro Consulente del Credito e Assicurativo.

Hai inserito correttamente tutti i dati necessari e a breve riceverai una e-mail con un link da convalidare per inviare i tuoi dati.
Affiliato
Federik Srl
Largo Alberazza, 12 43058 Sorbolo (PR)

Il nostro staff


  • Vincenzo Di Giacomo
    Responsabile

  • Mara Parisi
    Affiliata

  • Nicolina Silvestra Baudo
    Collaboratrice

  • Francesca Bandini
    Collaboratrice

  • Lorena Morelli
    Coordinatrice
Largo Alberazza, 12 43058 Sorbolo (PR)
Zona: Chiozzola-Sorbolo-Mezzani-Casaltone-Bogolese-Mezzani Inf. e Sup-Casale-Lentigione-Sorbolo Levante
Mostra su mappa
Orari: Siamo aperti dal lunedì al venerdì dalle 09.00 alle 20.00. Sabato dalle 9:00 alle 16:00 su appuntamento
Affiliato
Federik Srl
Largo Alberazza, 12 43058 Sorbolo (PR)

2026 Tecnocasa Franchising S.p.A. - P. IVA 08365160152 - Via Monte Bianco 60/A 20089 Rozzano (MI). Ogni agenzia ha un proprio titolare ed è autonoma. Privacy policy | Policy utilizzo | Cookie policy