Trilocale in vendita

Sorbolo, Via Italo Focherini
€ 245.000
3 locali 3 locali
99 Mq 99 Mq
2 bagni 2 bagni

Trilocale in vendita

Sorbolo, Via Italo Focherini

Descrizione annuncio

Sorbolo in posizione centrale

Appartamento completamente ristrutturato con garage.

In contesto tranquillo e ben servito, proponiamo in vendita splendido appartamento recentemente ristrutturato, ideale per chi cerca comfort e spazi ben distribuiti.

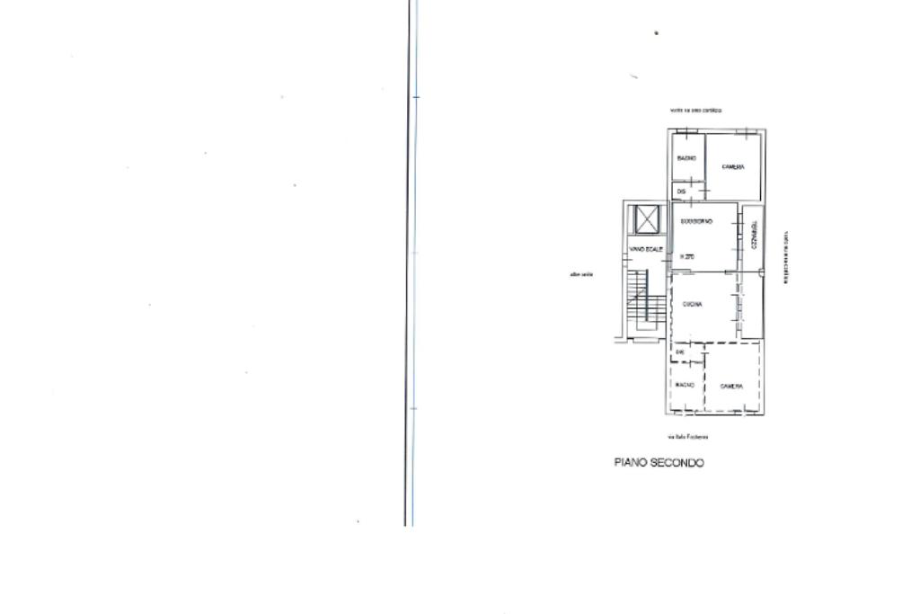
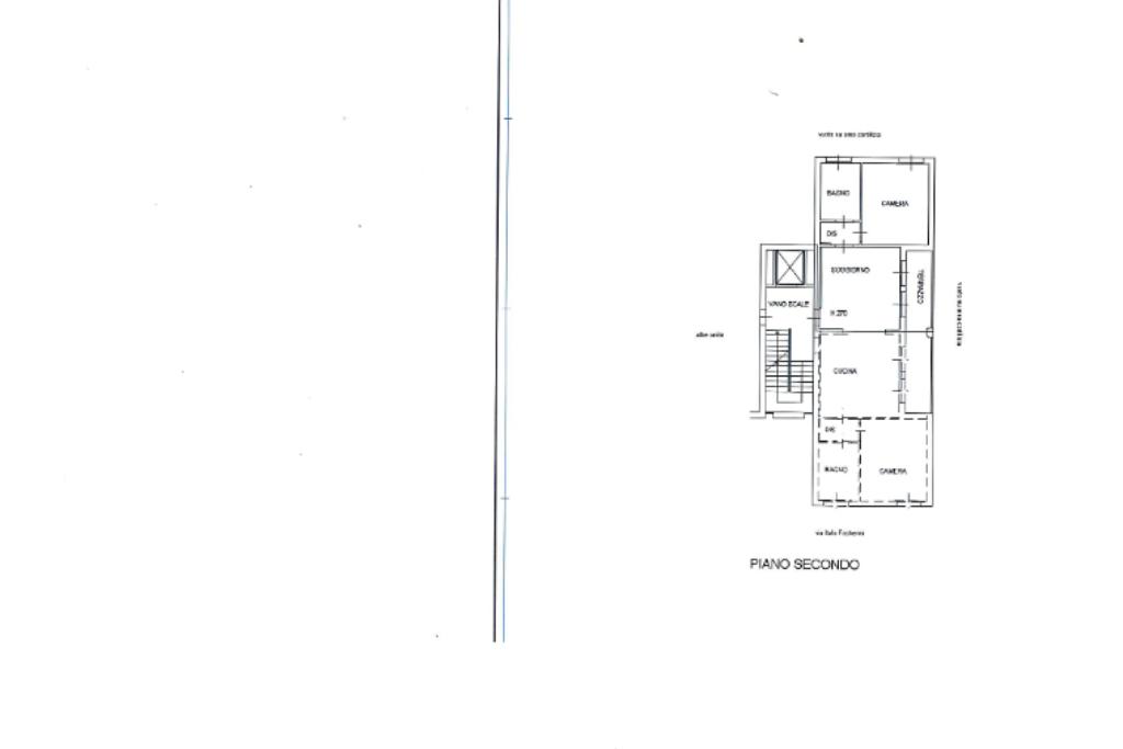
L’immobile si compone di: ampia zona giorno luminosa con cucina a vista, due camere matrimoniali spaziose, caratterizzate dal curato pavimento in parquet, due bagni moderni con doccia entrambi finestrati e un balcone vivibile perfetto per momenti di relax all’aperto.

Completano la proprietà: due cantine, ideali come spazio di deposito o ulteriore spazio da utilizzare per gli hobby e un garage privato.

Dotato di impianto con pannelli fotovoltaici, che garantiscono un significativo risparmio energetico e un’attenzione concreta alla sostenibilità e ascensore condominiale.

Soluzione pronta da abitare, perfetta per famiglie o per chi desidera un’abitazione efficiente e senza lavori da affrontare.

Per maggiori informazioni o fissare il tuo appuntamento senza impegno chiama Lorena al 0521694088 - 3311768162.

Mostra tutto

Nelle vicinanze

Trasporto pubblico Trasporto pubblico
Sorbolo
Sorbolo
720 m
21 - Via Martiri
21 - Via Martiri
100 m
21 - Via XI Settembre
21 - Via XI Settembre
130 m
Ricariche auto elettriche Ricariche auto elettriche
Sorbolo A Levante Pallini | EnelX
1,1 Km
Scuole Scuole
Scuola elementare O. Boni
270 m
Scuole
460 m
Scuola Materna "Agazzi"
660 m
Bar Bar
Bar
400 m
Ristoranti Ristoranti
Ristoranti
1,1 Km
Il Cacciatore
2,7 Km
Il Bersò
3,0 Km
Mostra tutto

Caratteristiche

Rif.:
61202309
Piano:
2 di 2 con ascensore (ultimo Piano)
Box:
1
Balconi:
1
Camere da letto:
2
Arredamento:
Parziale
Mostra tutto
Prezzo Prezzo
€ 245.000
Rata mutuo Rata mutuo
€ 1.161 / mese
Spese annue Spese annue
€ 2.500
Proponi il tuo prezzoProponi il tuo prezzo

Classe Energetica

E
E
E
E
E
E
E
E
E
EP invernale del fabbricato:
EP estiva del fabbricato:
Anno di costruzione:
2004
Riscaldamento:
Autonomo
Tipo impianto:
A radiatori
Tipo alimentazione:
Metano

Ti interessa visionare l'immobile?

Fissa un appuntamento  Fissa un appuntamento

Richiedi informazioni

Clicca su Leggi per aprire l'informativa
* Questi campi sono obbligatori

Calcola il tuo mutuo

Semplice e senza impegno
Anticipo

( % )
Mutuo

( % )

pochi semplici passi

inserisci i tuoi dati
Questionario completato
Grazie per aver richiesto un appuntamento senza impegno con un nostro Consulente del Credito e Assicurativo.

Hai inserito correttamente tutti i dati necessari e a breve riceverai una e-mail con un link da convalidare per inviare i tuoi dati.
Affiliato
Federik Srl
Largo Alberazza, 12 43058 Sorbolo (PR)

Il nostro staff


  • Vincenzo Di Giacomo
    Responsabile

  • Mara Parisi
    Affiliata

  • Nicolina Silvestra Baudo
    Collaboratrice

  • Francesca Bandini
    Collaboratrice

  • Lorena Morelli
    Coordinatrice
Largo Alberazza, 12 43058 Sorbolo (PR)
Zona: Chiozzola-Sorbolo-Mezzani-Casaltone-Bogolese-Mezzani Inf. e Sup-Casale-Lentigione-Sorbolo Levante
Mostra su mappa
Orari: Siamo aperti dal lunedì al venerdì dalle 09.00 alle 20.00. Sabato dalle 9:00 alle 16:00 su appuntamento
Affiliato
Federik Srl
Largo Alberazza, 12 43058 Sorbolo (PR)

2026 Tecnocasa Franchising S.p.A. - P. IVA 08365160152 - Via Monte Bianco 60/A 20089 Rozzano (MI). Ogni agenzia ha un proprio titolare ed è autonoma. Privacy policy | Policy utilizzo | Cookie policy